
Sheldon Barnes
(317) 660-5745
107 W Troy Avenue
Indianapolis, Indiana 46225
No Subdivision
4
Beds
3
Baths
2,912
Sq Ft
1912
Year Built
0.5
Acres
Schedule a tour or ask a question
Sheldon Barnes can help you tour 107 W Troy Avenue
Sheldon Barnes is a Carmel realtor and licensed real estate agent serving Indianapolis, Indiana and the rest of Hamilton County. Book a private tour of 107 W Troy Avenue, ask any question about this home, or talk through what you should know about buying in Indianapolis.
ABOUT THIS HOME
This charming and spacious home sits on a beautiful half-acre lot and offers 4 bedrooms and 2.5 baths. An inviting front porch welcomes guests into a space filled with character - tall ceilings, original stained woodwork, and functioning pocket doors add timeless appeal. The main level features the primary bedroom and a large living room that could easily serve as a fifth bedroom if desired. Updates include 3 new downstairs windows and a new furnace. Upstairs, you'll find two additional bedrooms - including a second primary - each with generous closet space. The upper level also has a private entrance on the east side of the home, offering potential for multi-generational living or rental options. The basement has been redone, and makes a great place for storage. A long driveway leads to an oversized detached garage with workshop space and plenty of parking. The deep, rectangular yard (60' wide x 352' deep)extends behind the garage and has perfect space for a fire pit and outdoor entertaining. No HOA! Conveniently located near downtown, major interstates, shopping, and more.
Ask about this home
QUESTIONS ABOUT 107 W TROY AVENUE?
Ask anything — the AI reads the listing's full data, photo features, and MLS remarks. Cites the source so you can verify.
5 questions left
FEATURES & AMENITIES
Interior
Exterior
Climate
THE FACTS
Pricing trajectory, room-by-room layout, schools, and what's nearby.
Price history
$240,000Listed· Nov 13, 2025
$210,000Reduced
↓ $30,000 (12.5% off original)
142 days on market
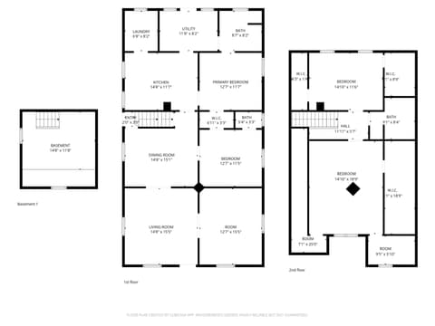
Layout
Primary bath
Tub Full with Shower
Schools
Perry Township Schools
Elementary
Abraham Lincoln Elementary School
Middle
Perry Meridian Middle School
High
Perry Meridian High School
Neighborhood
- Downtown Indianapolis3.2 mi
- Monon Trail (Carmel)16.5 mi
- Carmel Central Park16.8 mi
- Carmel High School17.2 mi
- IU Health North Hospital17.2 mi
- Zionsville Community HS17.2 mi
PROPERTY DETAILS
Combined data from the listing and Hamilton County records
Living Area
2,912 sq ft
Year Built
1912
Subdivision
No Subdivision
Bedrooms
4
Bathrooms
2 full, 1 half
Garage
2 spaces
School District
Perry Township Schools
AI deal analysis
HOW THIS HOME COMPARES
AI synthesis across 6 similar listings — pricing, distinctive features, era, and honest risk flags.
Scroll to load…
