
Sheldon Barnes
(317) 660-5745
11251 Abington Place
Fishers, Indiana 46038
Courtyard Lakes
$325,000
Schedule a Showing2
Beds
2
Baths
1,494
Sq Ft
1998
Year Built
0.04
Acres
Schedule a tour or ask a question
Sheldon Barnes can help you tour 11251 Abington Place
Sheldon Barnes is a Carmel realtor and licensed real estate agent serving Fishers, Indiana and the rest of Hamilton County. Book a private tour of 11251 Abington Place in Courtyard Lakes, ask any question about this home, or talk through what you should know about buying in Fishers.
ABOUT THIS HOME
Tucked away in a quiet corner of desired Courtyard Lakes in Fishers is 11251 Abington Place, a 2 bedroom, two bath condo with a lovely sunroom, newer carpet and flooring, a lovely front patio, and a HUGE 2-car garage, with all the storage you'll need! The main living space has great flow to all rooms, a gas fireplace for those cold nights, and easy access throughout. Courtyard Lakes is a lovely community, with pool, clubhouse, quiet streets and easy access to all that Fishers has to offer! Make this the start of your next chapter!
Ask about this home
QUESTIONS ABOUT 11251 ABINGTON PLACE?
Ask anything — the AI reads the listing's full data, photo features, and MLS remarks. Cites the source so you can verify.
5 questions left
FEATURES & AMENITIES
Interior
Climate
THE FACTS
Pricing trajectory, room-by-room layout, schools, and what's nearby.
Price history
$325,000Listed· Apr 29, 2026
1 days on market
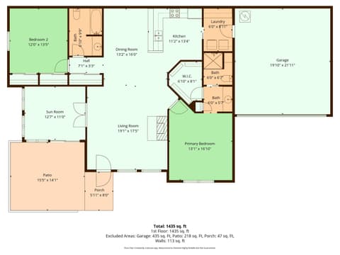
Layout
Primary suite
Closet Walk in
Schools
Hamilton Southeastern Schools
Neighborhood
- IU Health North Hospital1.9 mi
- Fishers High School1.9 mi
- Conner Prairie2.1 mi
- Hamilton Southeastern HS4.2 mi
- Monon Trail (Carmel)4.2 mi
- Carmel High School4.3 mi
PROPERTY DETAILS
Combined data from the listing and Hamilton County records
Living Area
1,494 sq ft
Year Built
1998
Subdivision
Courtyard Lakes
Bedrooms
2
Bathrooms
2 full
Garage
2 spaces
School District
Hamilton Southeastern Schools
